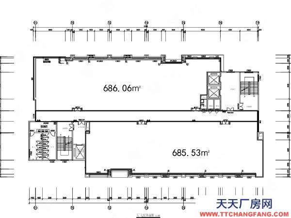
地處長株潭融城核心區域。總建筑面積約40萬平方米,項目分三期開發,目前在售的一期7棟總建筑面積近20萬平米。在售產品為帶客、貨梯的多層廠房,可做研發辦公、廠房、倉儲等用途,單戶面積100-660平,單層面積2000平,整棟7000-24000平,戶型面積靈活,可自由分割組合,利用率大。
天經國際企業街區作為天心經開區重點建設項目,將以促進天心經開區產業轉型、實現產城融合發展為目標,依托融城核心區功能配套,將開發打造成:智能制造、綠色科技、總部辦公、創意孵化、商務配套在內的各類產業聚集區及綜合配套服務園區。 園區地處省府板塊產城融合中心,周邊配套十分齊全:
交通配套:天心經開區地處長沙市中心城區天心區的南部,長株潭三市幾何中心位置,雄踞長株潭兩型社會建設綜合配套改革試驗區的前沿,是長沙的“南大門”、長株潭融城的“會客廳”。北鄰全省的行政、經濟、文化中心湖南省人民政府,南接湘潭昭山示范區、株洲云龍示范區,是長株潭三市融城的核心。長株潭城際鐵路、長沙地鐵1、5號線貫穿全境,繞城高速、芙蓉南路、107國道與武廣高鐵、京港澳高速實現無縫對接。黃花機場、高鐵南站、汽車南站綜合樞紐均在“”交通圈內。
商業配套:環宇城、友阿奧特萊斯廣場、德盛歡樂廣場、鑫遠鑫悅匯廣場、德思勤、紅星商業廣場等。
周邊住宅:中信凱旋城、中信文化廣場、鑫遠悅城、中建芙蓉嘉苑、和苑、中海新城。
醫療教育方面:湘雅五醫院、大托醫院、榮軍醫院。
學校配套:青園中信小學、長郡湘府中學、金海中學、長沙理工大學、中南大學鐵道學院、中南林業科技大學、長沙職教城等
周邊酒店有:華天假日酒店、鑫遠白天鵝酒店、現代凱萊大酒店、鑫遠白天鵝酒店。









